DA RESIDENCE

Luxury Villa with Modern Urban Design

Timeline

2.5 Years

Plot Size

40'3" X 46'2"

Orientation

Corner Plot

Type

Luxury Villa

About This Project

Modern Urban Villa Design

Urban Home with Double Height Spaces

DA RESIDENCE is a sophisticated villa that exemplifies modern urban design with a focus on open internal vistas and multiple terraces. The corner plot advantage is expertly exploited to create a luxurious living experience suited for contemporary multi-generational families.

This stunning villa features a central atrium-like space that unifies multiple levels, enhancing airiness and daylight penetration throughout the home. The abundant outdoor spillover spaces reflect a strong indoor-outdoor relationship, making it perfect for tropical living.

The design emphasizes functional zoning with semi-public areas on lower levels and progressively private spaces on upper floors, ensuring optimal privacy and comfort for all residents.

DA RESIDENCE Main Elevation
Project Gallery

Architectural Excellence Showcased

Floor Plans

Multi-Level Villa Layout

Stilt Floor Plan

Stilt Floor Plan

Foundation level with parking and utility spaces, designed for optimal structural support and accessibility.

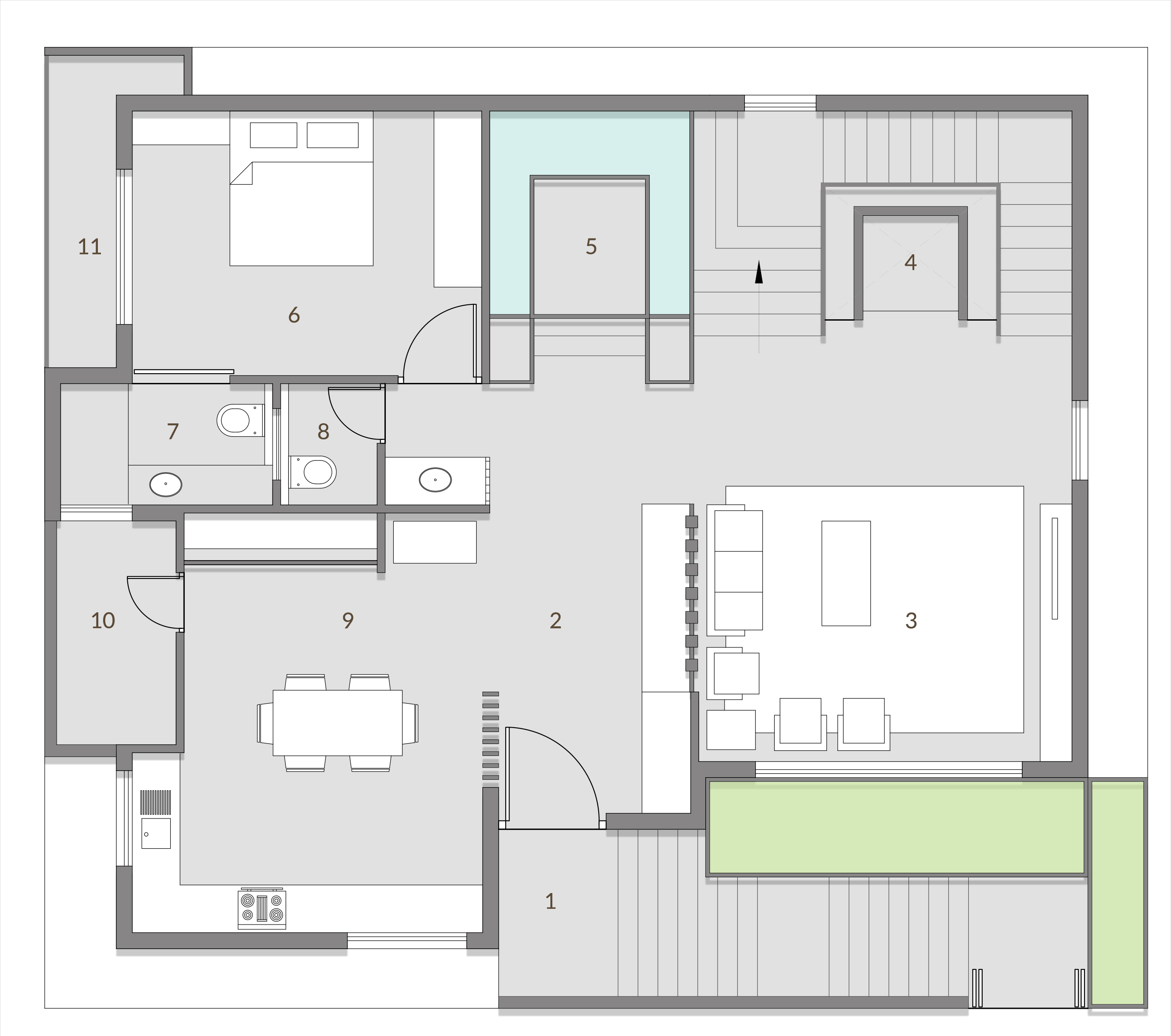
Ground Floor Plan

Ground Floor Plan

Semi-public spaces including living areas, designed with central atrium for enhanced natural light and ventilation.

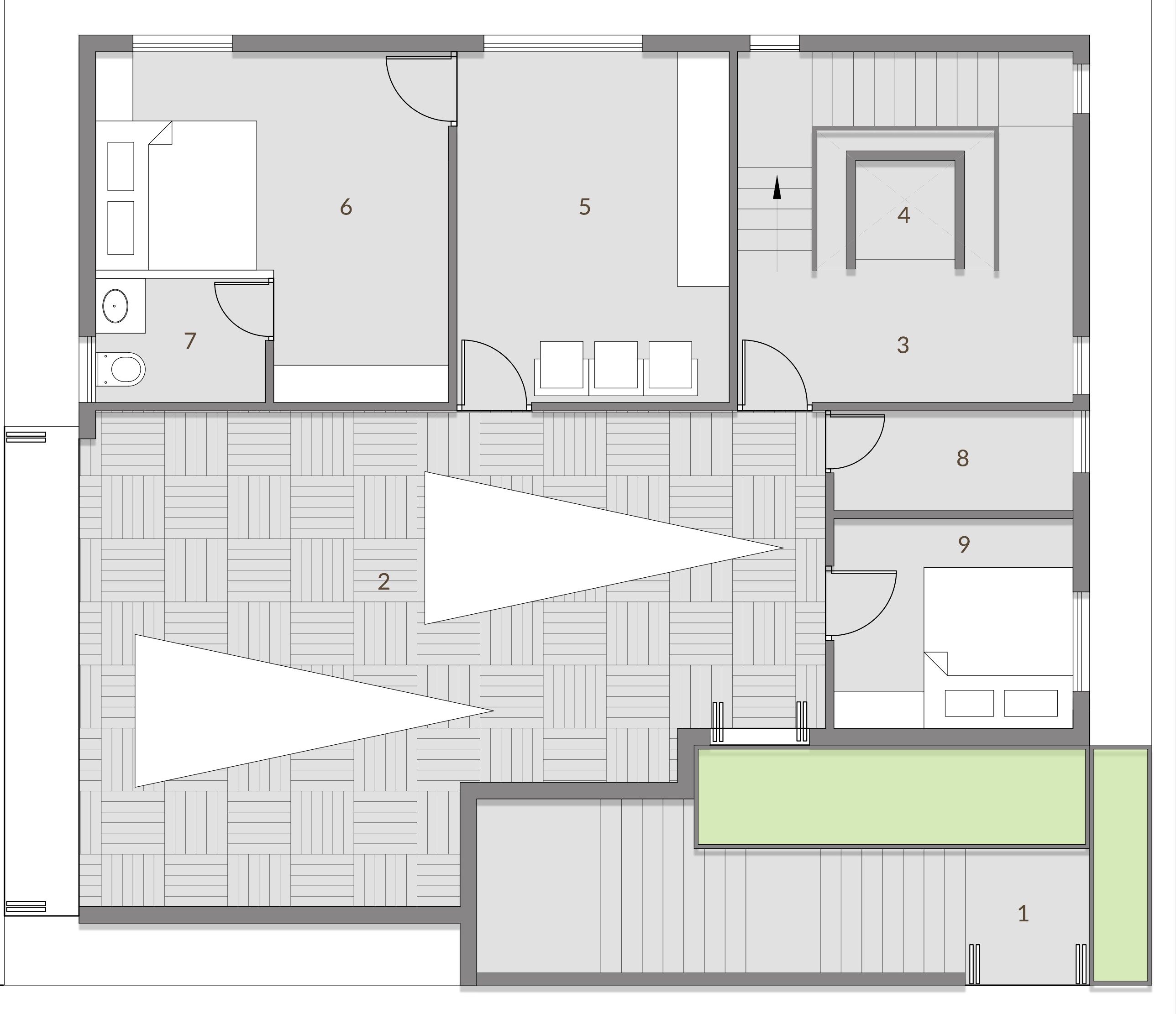
First Floor Plan

First Floor Plan

Private living spaces with double-height areas and multiple terraces for indoor-outdoor connectivity.

Second Floor Plan

Second Floor Plan

Most private level with master suites and personal spaces, offering maximum privacy and comfort.

Design Philosophy

Villa Design Excellence

Central Atrium Design

The central atrium-like space unifies multiple levels, enhancing airiness and daylight penetration throughout the villa. This design creates a spectacular vertical connection that brings natural light deep into the interior spaces.

Indoor-Outdoor Living

Abundant outdoor spillover spaces reflect a strong indoor-outdoor relationship. Multiple terraces and open areas create seamless transitions between interior and exterior spaces, perfect for tropical climate living.

Progressive Privacy

Strategic zoning places semi-public areas on lower levels with progressively private spaces on upper floors. The straightforward circulation with central staircase core ensures efficient movement and structural clarity.

Key Features

Distinctive Villa Elements

Double Height Spaces

Spectacular double-height interiors create a sense of grandeur and spatial drama, enhancing the luxurious feel of the villa.

Material Contrast

Bold horizontal and vertical planes with smooth white plaster contrasting dark stone cladding and warm wooden textures.

Cross Ventilation

Corner plot advantage with multiple entry points ensures excellent natural light and cross ventilation throughout the villa.

Multi-Generational

Thoughtfully designed for contemporary multi-generational families with private and communal spaces perfectly balanced.

Modern Urban Villa Excellence

"DA RESIDENCE blends functional zoning with spatial drama. Its corner-plot advantage is well exploited with multiple entry points, natural light, and cross ventilation. The villa creates a luxurious, airy feel perfectly suited for contemporary living."