ZOSH

Commercial Office with Modern Minimalism

Duration

3 Months

Area

2650 SFT

Location

Bangalore

Type

Office

About This Project

Modern Commercial Office Design

Professional Workspace with Modern Minimalism

ZOSH is a sophisticated third-floor commercial office of 2650 SFT in Bangalore that exemplifies modern minimalism through clean lines, minimal clutter, and streamlined furniture. The design creates a professional yet welcoming atmosphere that balances contemporary professionalism with inviting warmth.

The color palette features white, gray, and varying shades of blue, balanced by natural wood for warmth and small pops of green from plants. This strategic use of vertical lines, cool hues, and natural textures creates a dynamic yet comfortable environment conducive to productivity and client engagement.

The layout emphasizes open workspace design with long communal desks and ergonomic chairs that maximize collaboration and seat capacity, while enclosed conference spaces provide focal points for strategy sessions and private meetings.

ZOSH Main Office Interior
Project Gallery

Modern Office Interiors

Office Layout

Strategic Office Planning

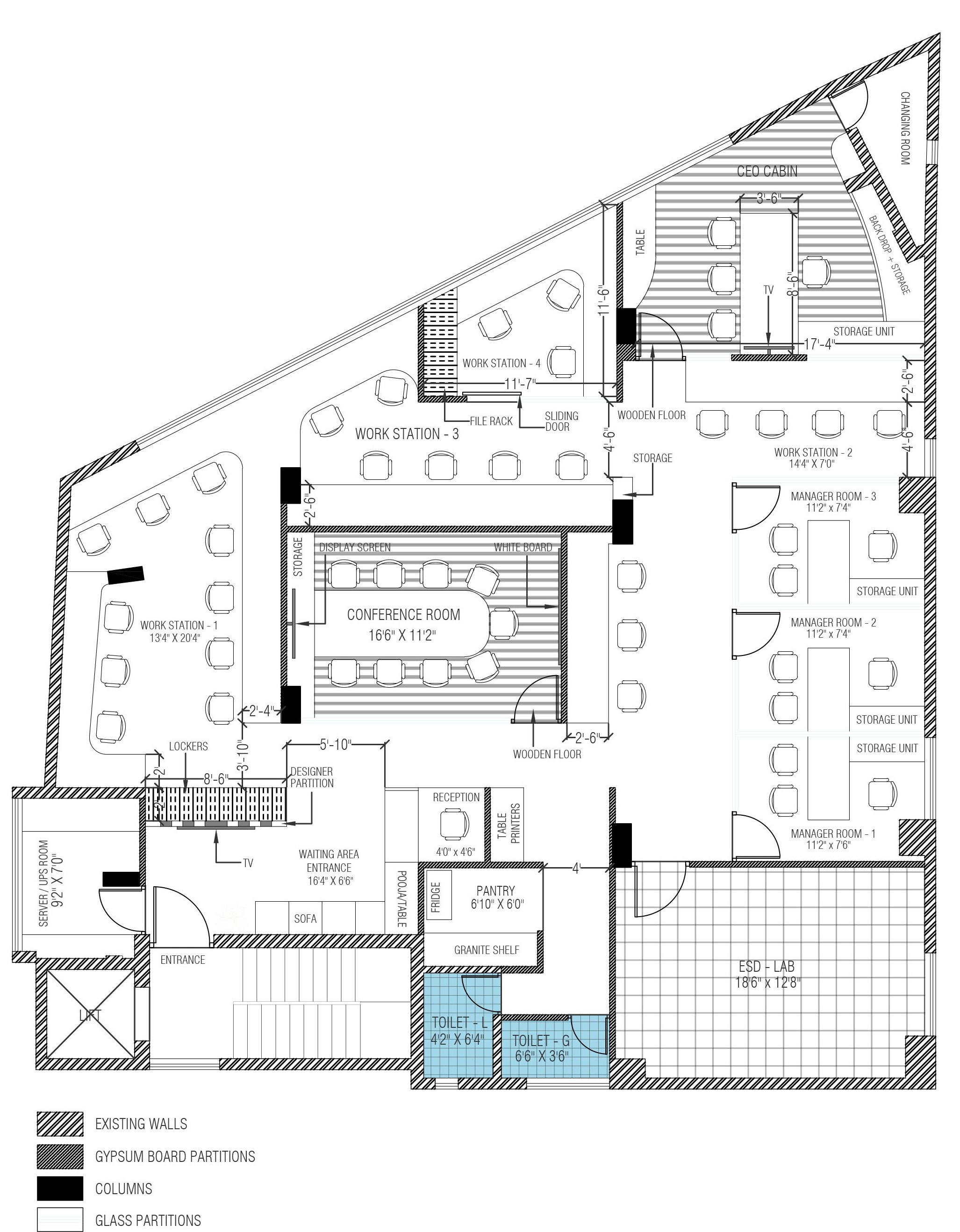
ZOSH Office Floor Plan

ZOSH Office Floor Plan

Third-floor commercial office layout organizing spaces into public, semi-private, and private zones for smooth circulation. The open plan fosters collaboration yet is defined by glass/gypsum partitions for acoustic control.

Open Workspace

Long communal desks with ergonomic chairs maximize collaboration and seat capacity while maintaining a professional atmosphere.

Conference Room

Centrally located conference space adjacent to workstations for easy team access and strategy sessions.

Linear Flow

Linear circulation from reception to work areas, ensuring privacy for executive spaces towards the back.

Design Philosophy

Commercial Office Excellence

Modern Minimalism

Clean lines, minimal clutter, and streamlined furniture create a professional yet welcoming atmosphere. The strategic use of white, gray, and blue tones balanced by natural wood brings warmth and sophistication to the workspace.

Collaborative Layout

Open workspace design with long communal desks and ergonomic chairs maximizes collaboration and seat capacity. The layout fosters teamwork while maintaining acoustic control through strategic glass and gypsum partitions.

Strategic Zoning

Public, semi-private, and private zones are organized for smooth circulation. Linear flow from reception to work areas ensures privacy for executive spaces while maintaining efficient workflow and accessibility.

Key Features

Distinctive Office Elements

Ergonomic Workstations

Long communal desks with ergonomic chairs maximize collaboration and seat capacity while maintaining comfort and productivity throughout the workday.

Acoustic Control

Strategic glass and gypsum partitions provide acoustic control while maintaining visual connectivity and natural light flow throughout the office space.

Biophilic Design

Small pops of green from strategically placed plants enhance the workspace environment, promoting well-being and creating a more inviting atmosphere.

Efficient Amenities

Pantry and restroom facilities are efficiently placed without interrupting workflow, ensuring convenience while maintaining the office's professional atmosphere.

Modern Commercial Office Excellence

"ZOSH balances contemporary professionalism with inviting warmth. The strategic use of vertical lines, cool hues, and natural textures creates a dynamic yet comfortable environment conducive to productivity and client engagement."